Bridgeport

Home / Bridgeport

Bridgeport

Bedroom 4
Bath 3
Sq. Ft. 1,765
Garage 2 Car
Width ' Wide
3D and pictures are visualization only
Bridgeport-3D-1

Description

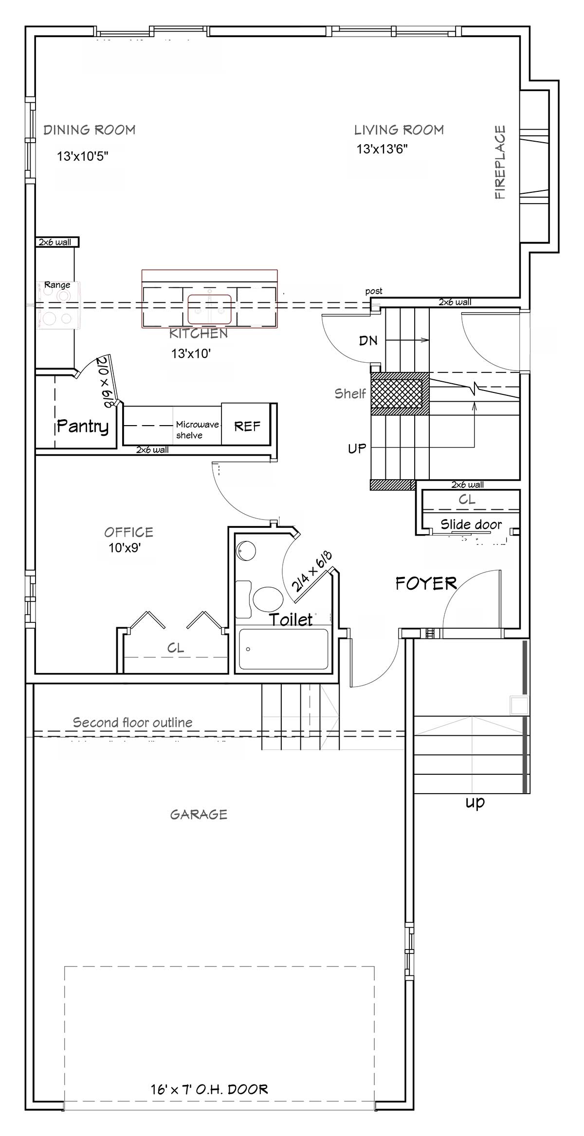
Merging metal, wood, and glass, the façade of the Bridgeport model home is stunningly attractive. This home features an engineered piled foundation with engineered joists. It comes with a 20’ x 22’ garage pad so you can choose a style that fits your own. Some of the extras in this home include nine-foot ceilings, an island and pantry in the kitchen, and LED interior lights. Decora switches and plugs and flat painted ceilings are also standard. Options items add to the customization of your home with options like a bonus room, second-floor laundry, and mud room. It’s a gorgeous space that you’ll enjoy for years to come.


Features

Separate Entrance to Basement Kitchen With Island and Pantry Optional Cantilever in Great Room for Entertainment Unit 9' Main floor Second floor laundry Flat painted ceilings LED Interior Lights (Where applicable) Decora Switches and Plugs Engineered Joists Engineered Piled Foundation Optional Mud Room 20'x22' Garage pad Main floor bedroom Deluxe ensuite Optional second floor laundry Optional Bonus Room
First Floor
Second Floor

Questions?

Ask us a question or simply request more information about this model

Mortgage Calculator
Bi-Weekly Payment
$
%
$
%
Years
$19,000
4.00%
Mortgage Payment Calculator
i Calculate what?
$
$