Caledor

Home / Caledor

Caledor

Bedroom 4
Bath 3
Sq. Ft. 2,111
Garage 2 Car
Width ' Wide
3D and pictures are visualization only
7 Sheilagh Ball Cove (72)

Description

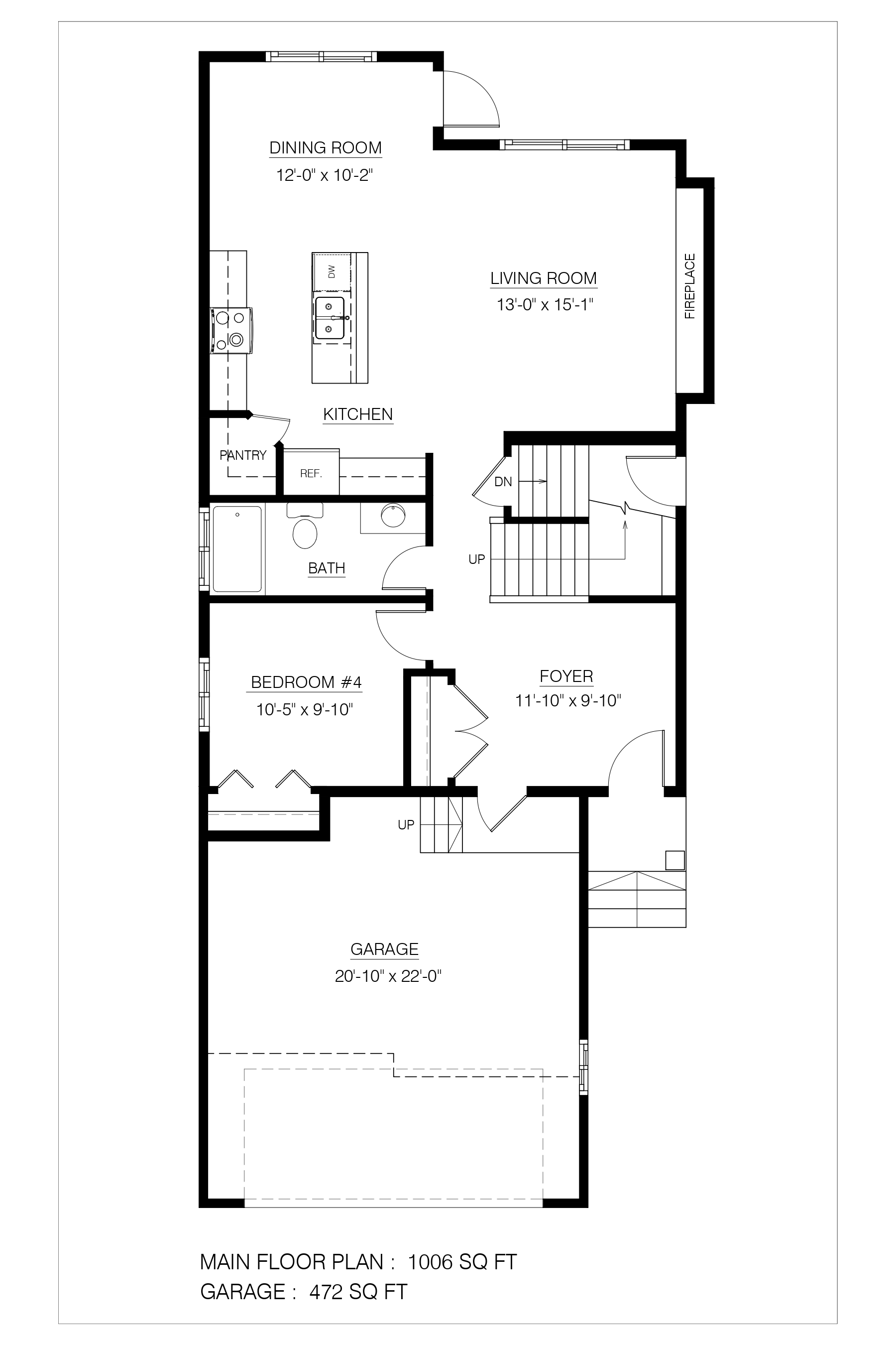
Offering over 2,100 square feet of space with four bedrooms and three bathrooms, the Caledor model home is perfect for larger families. It has a traditional style with modern extras that make it stand out from other homes in any neighborhood. The first floor of the home features a large living and dining area complete with a modern kitchen. A bathroom and bedroom sit near a foyer that provides access upstairs. The rest of the bedrooms and bathrooms are upstairs, along with space for a laundry room and a bonus room you can use as you like. A large garage sits outside and ties the exterior together in a stunning manner.


Features

Bonus Room Separate Entrance to Basement Kitchen With Island and Pantry 9' Main floor Second floor laundry Flat painted ceilings LED Interior Lights (Where applicable) Decora Switches and Plugs Engineered Joists Engineered Piled Foundation Walk-in Laundry on Second floor
First Floor
Second Floor

Questions?

Ask us a question or simply request more information about this model

Mortgage Calculator
Bi-Weekly Payment
$
%
$
%
Years
$19,000
4.00%
Mortgage Payment Calculator
i Calculate what?
$
$