350 Emberwell

Averland B

350 Emberwell In Summerlea, Winnipeg, Northeast

Bedroom 3
Bath 2.5
Sq. Ft. 1,674
Garage 2 Car Garage
Style Single Family Attached Garage
3D and pictures are visualization only

Description

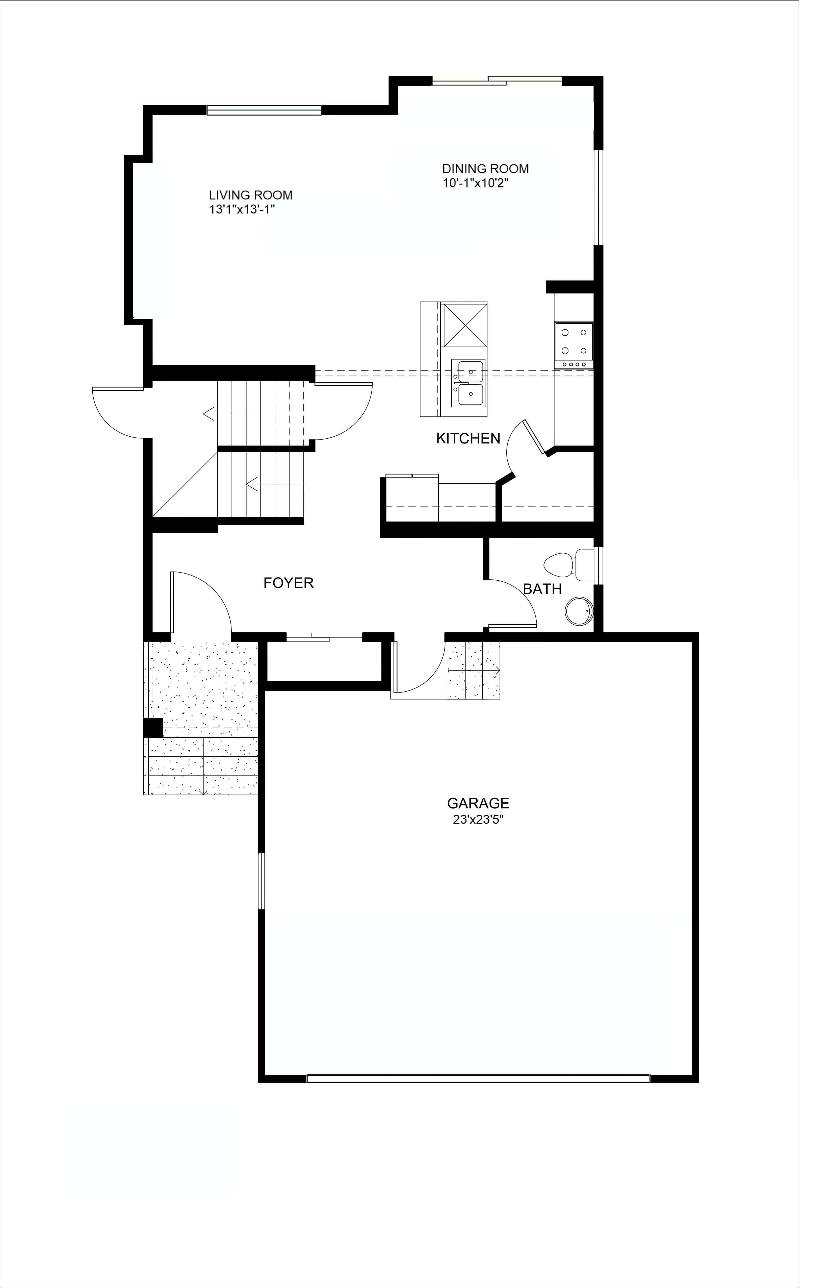
Presenting the updated version of Averland Plan, a spectacular 1674 sq ft show home with 3 Bed and 2.5 Bath. The kitchen has up to the ceiling cabinets and a ceramic backsplash, as well as stunning quartz countertops in both the kitchen and baths. With its totally modernised black aesthetic windows, the outside displays perfection while luxury flooring throughout enhances to the home's appearance. Second-floor loft expands entertainment; large windows shower the rooms with light. The entertainment unit features tiles and an electrical fireplace for a luxurious touch. A large laundry room provides plenty of storage, and a side entrance to the basement makes it suitable as a separate living space, making this home an excellent choice. It comes with a 23’ x 23.5’ garage pad so you can choose a style that fits your own.

Features

Separate Entrance to Basement 9' Main floor Second floor laundry Flat painted ceilings LED Interior Lights (Where applicable) Decora Switches and Plugs Engineered Joists Engineered Piled Foundation Acyrlic Cabinetry Steel Beam 1-2-5-10 Year Warranty Front Landscaping Quartz Countertop in the Kitchen and Second floor bathrooms Kitchen Appliances

Floor Plans

350 Emberwell (1)
350 Emberwell (4)
350 Emberwell (34)
350 Emberwell (7)
350 Emberwell (3)
350 Emberwell (6)
350 Emberwell (33)
350 Emberwell (28)
350 Emberwell (16)
350 Emberwell (17)
350 Emberwell (32)
350 Emberwell (19)
350 Emberwell (26)
350 Emberwell (18)
350 Emberwell (24)
350 Emberwell (21)
350 Emberwell (29)
350 Emberwell (30)
350 Emberwell (15)
350 Emberwell (25)
350 Emberwell (8)
350 Emberwell (9)
350 Emberwell (10)
350 Emberwell (11)
350 Emberwell (12)
350 Emberwell (22)
350 Emberwell (20)
350 Emberwell (13)
350 Emberwell (39)
350 Emberwell (42)
350 Emberwell (58)
350 Emberwell (59)
350 Emberwell (60)
350 Emberwell (61)
350 Emberwell (62)
350 Emberwell (35)
350 Emberwell (36)
350 Emberwell (37)
350 Emberwell (38)
350 Emberwell (40)
350 Emberwell (14)
350 Emberwell (41)
350 Emberwell (43)
350 Emberwell (44)
350 Emberwell (45)
350 Emberwell (52)
350 Emberwell (46)
350 Emberwell (54)
350 Emberwell (53)
350 Emberwell (56)
350 Emberwell (48)
350 Emberwell (49)
Belina
Belina

Area Sales Manager

I speak English and Tagalog

(204) 996-3798 Book An Appointments
Jocee
Jocee

Area Sales Manager

I speak English and Tagalog

(204) 930-2325 Book An Appointments

Questions?

Ask us a question or simply request more information about this model

Show Home Hours

Nearby Quick Possessions

Show Home & Quick Possession | Immediate
$628,800 Pre-GST. Includes home & lot. $1,271/Bi-weekly Averland B

350 Emberwell, Northeast In Summerlea

Available | Immediate
$523,800 Pre-GST. Includes home & lot. $1,059/Bi-weekly Averland

72 Dovetail Crescent, Northeast In Summerlea

Available | Mar 2026
$476,095 Pre-GST. Includes home & lot. $963/Bi-weekly Tyson - A

250 Bill Briercliffe, Northeast In Devonshire Park

Available | Mar 2026
$476,095 Pre-GST. Includes home & lot. $963/Bi-weekly Tyson - A

270 Bill Briercliffe, Northeast In Devonshire Park

Nearby Show Homes

Single Family Attached Garage
Averland B

350 Emberwell, Northeast In Summerlea

Single Family Attached Garage
Caledor B

26 Ken Butchart , Northeast In Devonshire Park

Mortgage Calculator
Bi-Weekly Payment
$
%
$
%
Years
$19,000
4.00%
Mortgage Payment Calculator
i Calculate what?
$
$